Save
Ask
Tour
Hide
$695,000
New Listing
104 King RoadRoseville, CA 95678
For Sale|Single Family Residence|Active
2
Beds
1
Total Bath
1
Full Bath
1,602
SqFt
$434
/SqFt
1941
Built
County:
Placer
Call Now: (408)-605-0129
Is this the listing for you? We can help make it yours.
(408)-605-0129



Save
Ask
Tour
Hide
Mortgage Calculator
Monthly Payment (Est.)
$3,171Calculator powered by Showcase IDX, a Constellation1 Company. Copyright ©2026 Information is deemed reliable but not guaranteed.
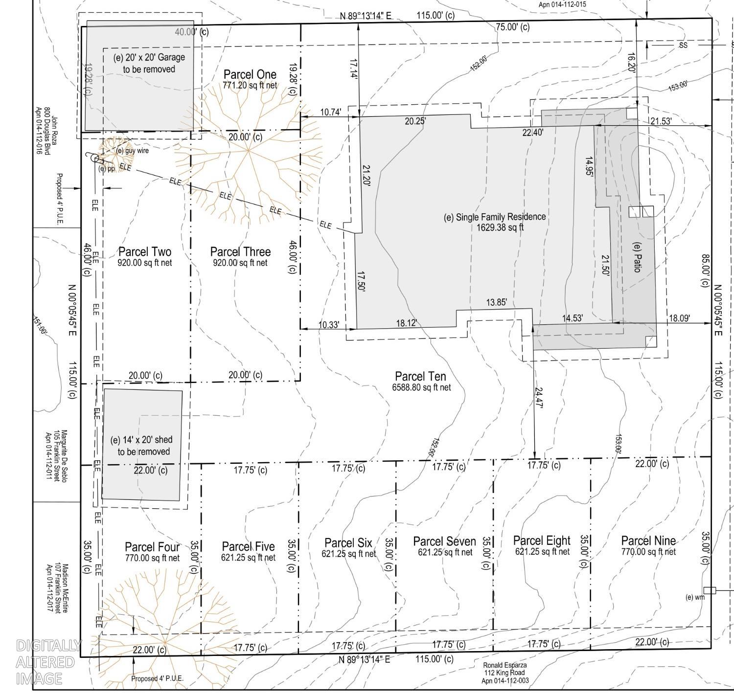
DEVELOPMENT Opportunity of a lifetime awaits! Fully renovated unique craftsmanship home in the heart of Roseville generating excellent short term rents! Zoned High Density Residential. City of Roseville approved Commercial Project Corridors specific plan making this a high density residential zoning with endless opportunities to built many units, split this double lot and more! Investor or developer special or someone who would like to be one. City would like to see 20+ units built on this lot and gave preliminary green light for 10 parcel split!
Save
Ask
Tour
Hide
Listing Snapshot
Price
$695,000
Days On Site
0 Days
Bedrooms
2
Inside Area (SqFt)
1,602 sqft
Total Baths
1
Full Baths
1
Partial Baths
N/A
Lot Size
0.3012 Acres
Year Built
1941
MLS® Number
226033876
Status
Active
Property Tax
N/A
HOA/Condo/Coop Fees
N/A
Sq Ft Source
N/A
Friends & Family
Recent Activity
| 17 hours ago | Listing updated with changes from the MLS® | |
| 17 hours ago | Listing first seen on site |
General Features
Acres
0.3012
Cross Street
Douglas
Foundation
Raised
Number Of Stories
1
Parking
Unassigned
Property Sub Type
Single Family Residence
Sewer
Public Sewer
Water Source
Public
Zoning
HDR
Interior Features
Appliances
Free-Standing RefrigeratorDishwasherDisposalMicrowave
Cooling
Ceiling Fan(s)Central Air
Electric
220 Volts in Kitchen220 Volts in Laundry
Fireplace
Yes
Fireplace Features
Living RoomRaised HearthOther
Fireplaces
1
Flooring
Wood
Heating
Natural GasCentralFireplace(s)
Save
Ask
Tour
Hide
Exterior Features
Lot Features
Private
Patio And Porch
Front Porch
Roof
Shingle
Community Features
Financing Terms Available
CashConventional
MLS Area
12678
School District
Placer
Schools
School District
Placer
Elementary School
Unknown
Middle School
Unknown
High School
Unknown
Listing courtesy of Realty ONE Group Complete
All measurements and all calculations of the area are approximate. Information provided by Seller/Other sources, not verified by Broker. All interested persons should independently verify the accuracy of information. Provided properties may or may not be listed by the office/agent presenting the information. Data maintained by MetroList® may not reflect all real estate activity in the market. All real estate content on this site is subject to the Federal Fair Housing Act of 1968, as amended, which makes it illegal to advertise any preference, limitation or discrimination because of race, color, religion, sex, handicap, family status or national origin or an intention to make any such preference, limitation or discrimination. Terms of Use
Last checked 2026-03-21 03:19 AM PDT
All measurements and all calculations of the area are approximate. Information provided by Seller/Other sources, not verified by Broker. All interested persons should independently verify the accuracy of information. Provided properties may or may not be listed by the office/agent presenting the information. Data maintained by MetroList® may not reflect all real estate activity in the market. All real estate content on this site is subject to the Federal Fair Housing Act of 1968, as amended, which makes it illegal to advertise any preference, limitation or discrimination because of race, color, religion, sex, handicap, family status or national origin or an intention to make any such preference, limitation or discrimination. Terms of Use
Last checked 2026-03-21 03:19 AM PDT
Neighborhood & Commute
Source: Walkscore
Save
Ask
Tour
Hide

