3595 Annabelle AvenueGranite Bay, CA 95661




Mortgage Calculator
Monthly Payment (Est.)
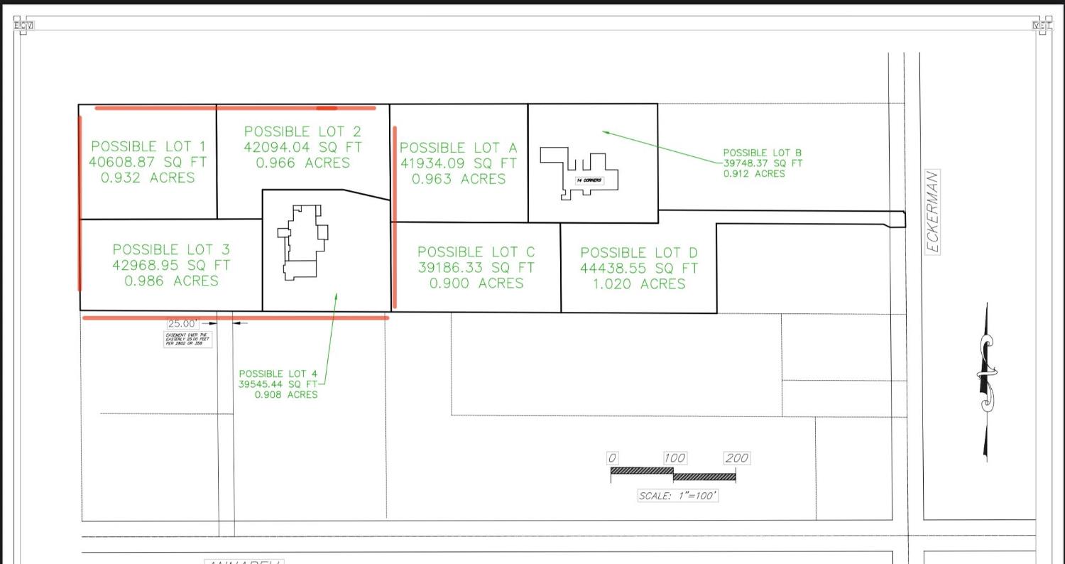
$13,664Amazing and rare find! 3.8 Acres of splitable land in GRANITE BAY! Split this 3.8 acres into 4 lots at .9 acres each! OR purchase the adjoining property at 9340 Eckerman Rd is also for sale and if purchased together will offer you 7.6 acres of splitable GRANITE BAY LAND for up to 8 extremely valuable .9 acre lots! (SEE ATTACHED PROPOSED MAP in photos)!There are 4 Homes on Annabelle Avenue within 200 yards of this property that have recently sold for 2.2 - 2.4 million! ...Without the splitable acreage! An existing custom home is included on this property! ...A stunning Rustic Modern Craftsman style home nestled in a park like setting! Built w/ large beams & natural stone elements yet a very modern flair throughout! The expansive Great Room has soaring 23 foot high vaulted ceilings w/ massive exposed wood beams & full glass wall overlooking the beautiful pond & acreage! \Gourmet kitchen w/ solid Alderwood cabinets by Thomasville, Taj Mahal Quartzite countertops! All stainless steel appliances! 4 ovens! 48 commercial gas Range! 48 built in refrigerator! 2 dishwashers! 3 sinks! coffee/wet bar! 2 huge islands! Fabulous layout & ample storage! Bathrooms all have Micro Cement Floors! 5 car garage that is fully finished & prewired for 2 EV Chargers! OWNER OWNED 6KW solar array on the TIER 2 Program w PG&E = great savings on your electric bills! Wired for 30kw generator! NO HOA! NO WATER OR SEWER BILLS FOR LIFE! House is completely finished except for the additional 1400+ square feet of extra space above the garage! This upstairs space is unfinished so new owners can customize this area to their own needs and desires! Possible uses as a ADU, Teen room, mother in laws quarters, home office, mancave or just extra storage as is!
| 7 hours ago | Listing updated with changes from the MLS® | |
| 8 hours ago | Listing first seen on site |
All measurements and all calculations of the area are approximate. Information provided by Seller/Other sources, not verified by Broker. All interested persons should independently verify the accuracy of information. Provided properties may or may not be listed by the office/agent presenting the information. Data maintained by MetroList® may not reflect all real estate activity in the market. All real estate content on this site is subject to the Federal Fair Housing Act of 1968, as amended, which makes it illegal to advertise any preference, limitation or discrimination because of race, color, religion, sex, handicap, family status or national origin or an intention to make any such preference, limitation or discrimination. Terms of Use
Last checked 2026-03-05 04:07 PM PST


Did you know? You can invite friends and family to your search. They can join your search, rate and discuss listings with you.