435 Luna PlaceLincoln, CA 95648


Mortgage Calculator
Monthly Payment (Est.)
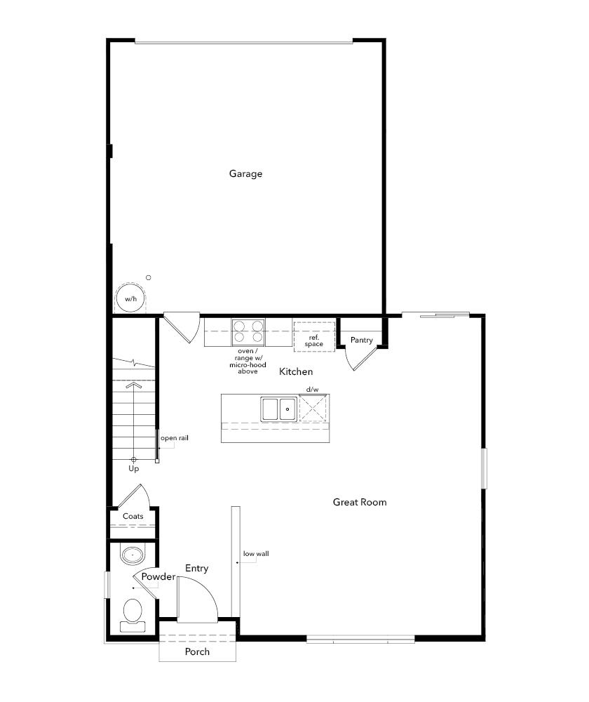
$2,159Homesite 28 at Archer Estates offers a beautifully designed two-story KB Home that blends modern finishes with a functional, open-concept layout. Thoughtfully appointed, this home includes vinyl plank flooring in the main living areas and plush carpet in select spaces, creating a warm and inviting feel throughout. The open kitchen overlooks the great room, making it ideal for both everyday living and entertaining. It features quartz countertops, a convenient pantry closet, and stainless steel appliances, including an electric range and microwave/hood combo. This seamless layout allows for easy connection between cooking, dining, and relaxing. The primary suite is a true retreat, offering two walk-in closets for exceptional storage, a dual-sink vanity, and a spacious walk-in shower. An upstairs laundry room adds everyday convenience and keeps chores close to the bedrooms. Additional features such as a smart thermostat enhance comfort and energy efficiency. Located within the desirable Archer Estates community, Homesite 28 combines contemporary design, practical living spaces, and quality finishesperfect for today's lifestyle in a well-connected Sacramento-area location.
| yesterday | Listing updated with changes from the MLS® | |
| 2 days ago | Listing first seen on site |
All measurements and all calculations of the area are approximate. Information provided by Seller/Other sources, not verified by Broker. All interested persons should independently verify the accuracy of information. Provided properties may or may not be listed by the office/agent presenting the information. Data maintained by MetroList® may not reflect all real estate activity in the market. All real estate content on this site is subject to the Federal Fair Housing Act of 1968, as amended, which makes it illegal to advertise any preference, limitation or discrimination because of race, color, religion, sex, handicap, family status or national origin or an intention to make any such preference, limitation or discrimination. Terms of Use
Last checked 2026-01-14 04:50 PM PST


Did you know? You can invite friends and family to your search. They can join your search, rate and discuss listings with you.