12354 Rocky Ford CourtRancho Cordova, CA 95742


Mortgage Calculator
Monthly Payment (Est.)
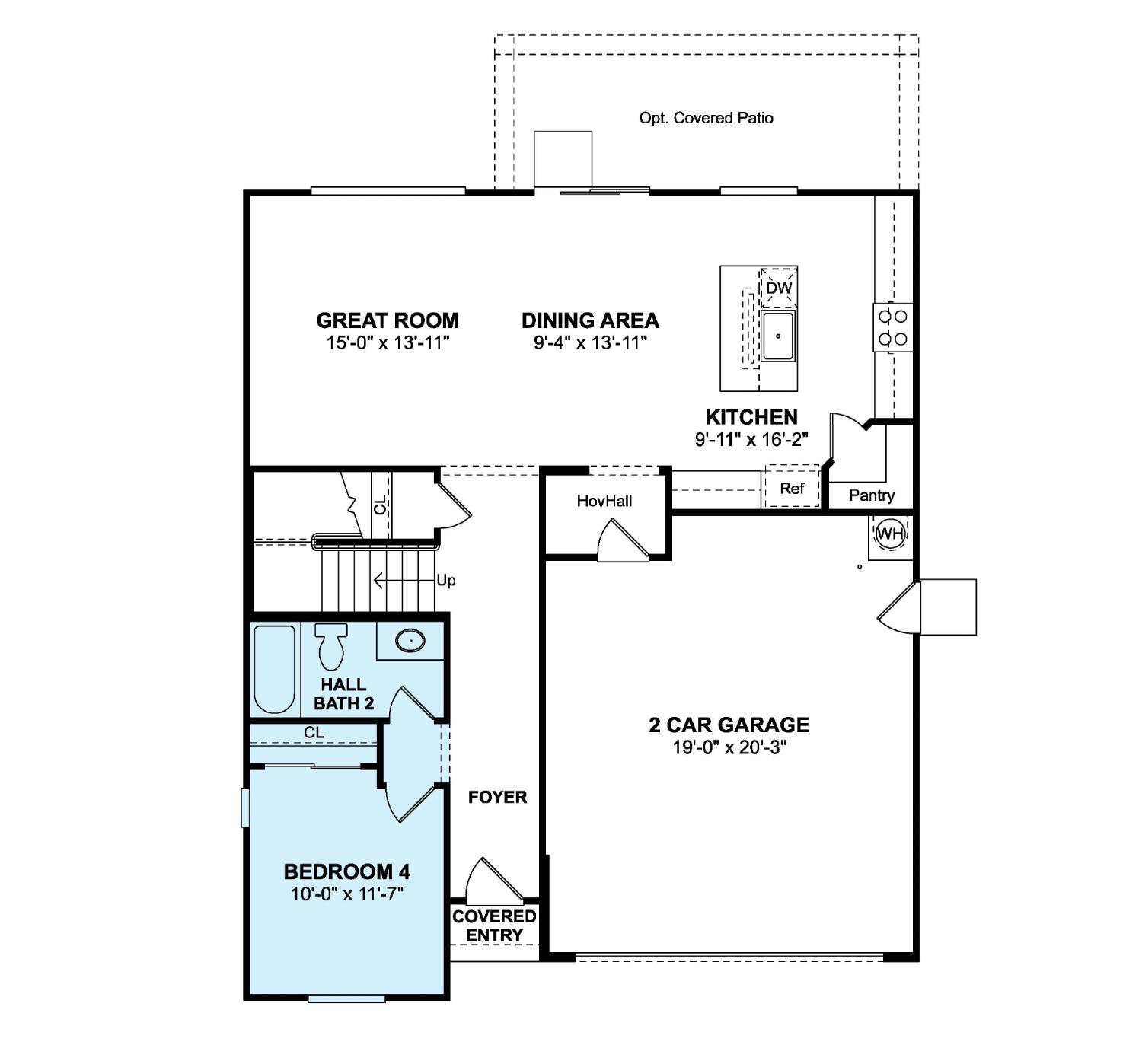
$2,546Welcome to Montrose at The Ranch, a thoughtfully designed master-planned community offering exceptional convenience with easy access to Folsom, Sacramento, Elk Grove, and more. This beautifully crafted Cerise plan home blends Farmhouse-inspired elegance with modern functionality, creating a space that is both stylish and comfortable. At the heart of the home is a stunning kitchen featuring crisp White cabinetry, Valle Nevado granite countertops, GE stainless-steel Energy Star appliances, a spacious walk-in pantry, and a versatile island perfect for casual meals or entertaining guests. Ideal for multi-generational living or visiting guests, a full bedroom and bathroom downstairs provide privacy and flexibility. Upstairs, a large loft offers endless possibilities as a media lounge, game room, or home office. Two well-sized secondary bedrooms ensure there's space for everyone. Retreat to the luxurious Owner's Suite, complete with a spa-inspired bathroom, step-in shower, and a generous walk-in closetyour own private sanctuary at the end of the day. Don't miss out on this home at Montrose at The Ranch, plan your visit today. *Prices subject to change.
| a week ago | Listing updated with changes from the MLS® | |
| a week ago | Price changed to $557,990 | |
| 3 months ago | Status changed to Active | |
| 4 months ago | Listing first seen on site |
All measurements and all calculations of the area are approximate. Information provided by Seller/Other sources, not verified by Broker. All interested persons should independently verify the accuracy of information. Provided properties may or may not be listed by the office/agent presenting the information. Data maintained by MetroList® may not reflect all real estate activity in the market. All real estate content on this site is subject to the Federal Fair Housing Act of 1968, as amended, which makes it illegal to advertise any preference, limitation or discrimination because of race, color, religion, sex, handicap, family status or national origin or an intention to make any such preference, limitation or discrimination. Terms of Use
Last checked 2025-10-25 02:17 AM PDT


Did you know? You can invite friends and family to your search. They can join your search, rate and discuss listings with you.